House of Communities

As the technology keeps advancing, more in person activities were chopped off and switched connecting online, especially for the younger generations. The exchange for different diversities and communities are weaker than it used to be. People are now less likely to share their diversities and culture as people can reach interests through online.
To create a masterplan for Dalston to have more communities spaces and workshops to encourage more in person activities and attract more younger professionals to be in Dalston to make Dalston more vibrant and enlarge the diversities and communities of Dalston.
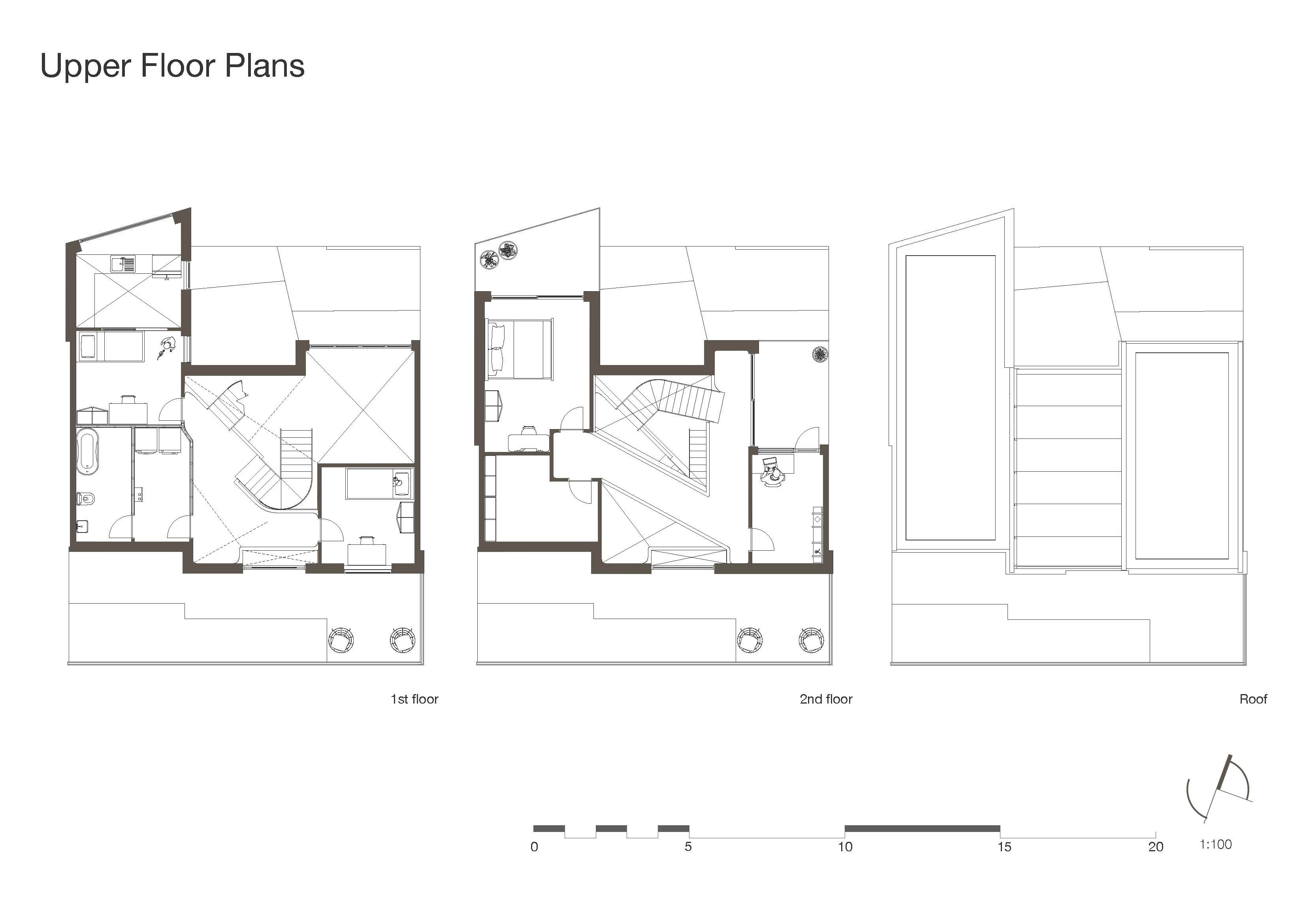
To achieve a space for multi-cultural community hub that is for young professional's family of four, an affordable, cheaper alternative with better living environment houses rise above to make spaces for workshops, community spaces and local stores. With the connection with the Dalston Eastern Curve Garden, this masterplan will expand the connections for communities, hence the multi-culture and different diversities will evolve into a distinctive community in Dalston.
Project
Housing
Location
Dalston, United Kingdom
Software
AutoCad, Rhino 8, D5 Renders, Photoshop, Illustrator, InDesign



















